VIER MODERNE EN RUIME 2/1-KAP SEMI-BUNGALOWS AAN DE MEURSSTRAAT IN HEESCH.
De warme en karakteristieke bouwstijl van de semi-bungalows (materialen die o.a. gebruikt worden zijn red cedar hout en donkerrode gevelstenen) sluit naadloos aan bij de landelijke uitstraling van de Meursstraat, waar de natuur nooit ver weg is.
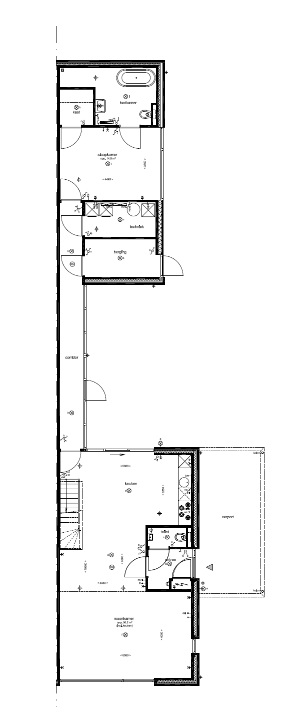
De semi-bungalows aan de Meursstraat zullen niet alleen ruim van opzet zijn, maar ook nog eens zeer comfortabel. Want alle gewenste voorzieningen -tot de badkamer en slaapkamer aan toe- bevinden zich op de begane grond. Daarnaast biedt een nog vrij indeelbare 1e verdieping ca. 32m2 extra gebruiksoppervlakte, welke bijvoorbeeld ingericht kan worden met nog één of twee ruimtes en een 2e badkamer.
De grote raampartijen zorgen door de gehele woning voor prettige daglichttoetreding, waardoor men in elke ruimte heerlijk kan vertoeven. De bungalows zullen op ruime percelen gebouwd worden, waardoor men niet over een kleine patio maar over een goed formaat tuin zal beschikken. Daarnaast biedt elk perceel voldoende ruimte om een auto op eigen terrein te parkeren onder de carport.
BESCHIKBAARHEID




Deze woningen zijn inmiddels verkocht door Walboomers & Timmers woning-/bedrijfsmakelaars.






